西荻のことビル 3階テナント募集

「西荻のことビル」3階の一室に、4月から空きが出ることになりました。
そこで、テナントとして入ってくれる方を募集します。
「西荻のことビル」は、まちづくり会社「株式会社西荻のこと」が運営する、築50年以上のレトロなビル。
1階にはシェアカフェ、2階にはイベントスペースと手芸屋さんがあります。
今回募集するのは、3階の南側のお部屋。
広いバルコニーも付いていて、明るく気持ちのいいスペースです。
事務所やアトリエ、作業場などにおすすめ。
それほど来店が多くなければ、店舗での利用も可能です。(飲食はNG)
シェアスペースにしたい、など使い方は柔軟に相談に乗ります。
賃料を半分ずつで2組の方に入ってもらう、ということも考えています。
ご興味ある方は、お気軽にお問い合わせください。
西荻のことビルについて
https://nishioginokoto.co.jp/kotobiru/
株式会社西荻のことについて
https://nishioginokoto.co.jp/about/
【物件概要】
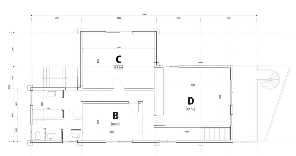
西荻のことビルRoomD
27.5㎡+バルコニー
(エアコン設置済 共用のキッチンとトイレ有)
賃料 14万円+消費税/月
水道光熱費 1万円+消費税/月
保証金 賃料の2ヶ月
礼金 賃料の1ヶ月+消費税
定期借家5年(再契約相談)
火災保険・保証会社必須
JR中央・総武線西荻窪駅徒歩3分
1970年築
鉄骨造3階建3階(エレベーターなし)

※デスク・椅子など設備や備品は付きません

平面図

問い合わせ
株式会社 西荻のこと
担当 福田
kabu@nishiogi.org
080-3595-0500